дом радость

6491150.00
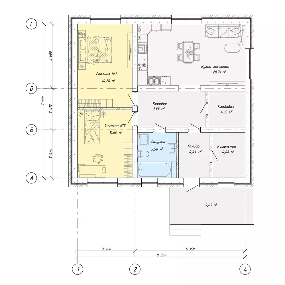
Этаж: 1

Площадь: 80 м²

Комнат: 2

Габариты: 8 600 мм х 9 350 мм
О проекте
Планировка
Комплектация дома

О проекте

Дом «Радость» общей площадью 80 квадратных метров, что позволяет разместить все необходимые помещения для комфортной жизни.

Дом состоит из кухни-гостиной, санузла, двух комнат, кладовой и котельной комнаты. Кухня-гостиная служит местом для приготовления пищи и приёма гостей, а также является сердцем дома, где вся семья собирается вместе. Кладовая служит местом для хранения продуктов и других вещей, а котельная комната обеспечивает отопление и горячее водоснабжение дома.

Дом «Радость» идеально подходит для тех, кто ищет комфортное и просторное жильё с удобной планировкой и всеми необходимыми удобствами.

Планировка

Комплектация дома

Фундамент
Фундамент подбирается после проведения геологии на земельном участке.
Монолитное перекрытие пола первого этажа 100мм.

Цоколь
Цоколь утепленный ЭППС 50 мм с облицовкой.

Отмостка в подарок!
Отмостка бетонная, утепленная ЭППС 50мм.

Стены
Газобетонные блоки Сибит 300 мм D500 / Сибит 400 мм D400.
Теплоизоляция стен: Минеральная плита 75-125 кг/м3 толщиной 50мм.
Армированный пояс.
Утепление экструдированным пенополистиролом 100 мм.
Отделка фасада: облицовочный белый кирпич или штукатурка (мокрый фасад).

Кровля
Металлочерепица толщиной 0,5 мм.
Деревянная стропильная система с контробрешеткой и подкровельной мембраной (ветро-гидро защитная диффузионная мембрана). Деревянное чердачное перекрытие.
Утепление эковатой 200 мм.
Отделка карнизов металлическими софитами.
Водосточная система.

Коммуникации
Полный комплекс работ по разводке и подключению инженерных коммуникаций:
· водоснабжение
· отопление
· канализация
· электричество
· вентиляция

Водоснабжение
Разводка горячего и холодного водоснабжения по мокрым точкам.

Отопление
Газовый двухконтурный котел
Теплые полы с коллекторной группой
Алюминиевые радиаторы отопления

Канализация
Cептик с переливом 9 м3.

Электричество
Разводка электричества.
Установка распределительной коробки.
Монтаж контура заземления.

Вентиляция
Установка выходов вытяжки на кровлю.
Разводка каналов по дому.
Установка приточных клапанов.

Остекление
Окна: пятикамерный профиль, двухкамерный энергоэффективный. Стеклопакет с отражающим покрытием с наружной отделкой. Москитные сетки в подарок.
Монтаж металлических отливов.

Входная дверь
Утепленная входная дверь с терморазрывом.

Электрика
Монтаж освещения и силовых кабелей с установкой подрозетников.
Установка розеток и выключателей.
Монтаж уличного освещения.

Отделка внутренних стен
Штукатурка по маякам.
Шпаклёвка под обои на 2 раза.

Отделка пола
Полусухая стяжка по маякам с утеплением экструдированным пенополистиролом (пол готов к укладке напольного покрытия).

Межкомнатные перегородки
Кирпичные перегородки.
Смотрите также