славный дом про

6415407.00
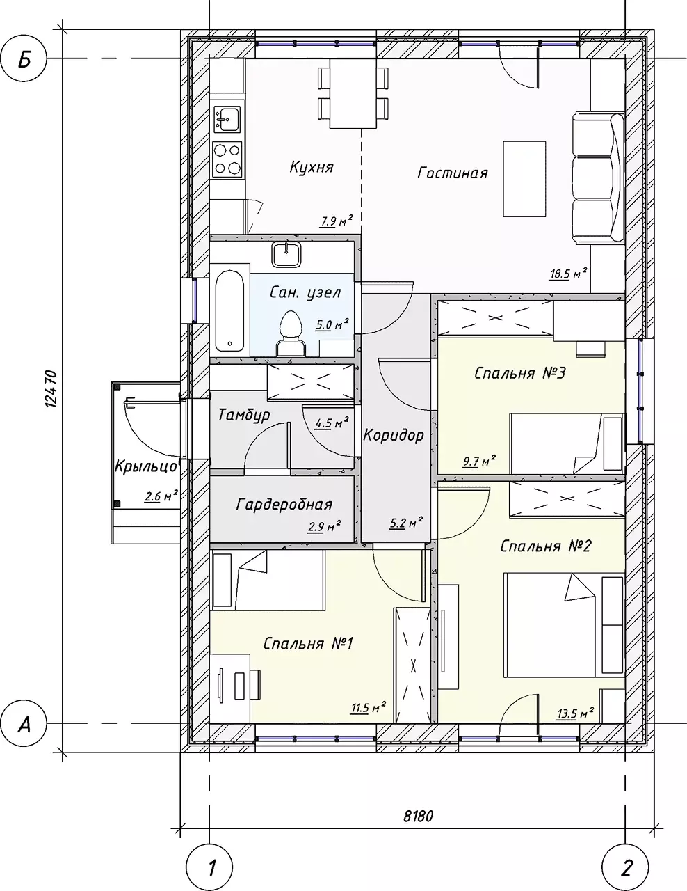
Этаж: 1

Площадь: 80 м²

Комнат: 3

Габариты: 8 180 мм х 12 470 мм
О проекте
Планировка
Комплектация дома

О проекте

Славный дом про – это современный одноэтажный дом с большими панорамными окнами. Он наполнен уютом, светом и теплом. Наши архитекторы продумали все до мелочей, чтобы ваша жизнь в этом доме была удобной, комфортной и светлой.

Славный дом про – это дом для тех, кто ценит уют, стиль, комфорт и заботится о своем бюджете.

Планировка

Комплектация дома

Фундамент
Фундамент подбирается после проведения геологии на земельном участке.
Монолитное перекрытие пола первого этажа 100мм.

Цоколь
Цоколь утепленный ЭППС 50 мм с облицовкой.

Отмостка в подарок!
Отмостка бетонная, утепленная ЭППС 50мм.

Стены
Газобетонные блоки Сибит 300 мм D500 / Сибит 400 мм D400.
Теплоизоляция стен: Минеральная плита 75-125 кг/м3 толщиной 50мм.
Армированный пояс.
Утепление экструдированным пенополистиролом 100 мм.
Отделка фасада: облицовочный белый кирпич или штукатурка (мокрый фасад).

Кровля
Металлочерепица толщиной 0,5 мм.
Деревянная стропильная система с контробрешеткой и подкровельной мембраной (ветро-гидро защитная диффузионная мембрана). Деревянное чердачное перекрытие.
Утепление эковатой 200 мм.
Отделка карнизов металлическими софитами.
Водосточная система.

Коммуникации
Полный комплекс работ по разводке и подключению инженерных коммуникаций:
· водоснабжение
· отопление
· канализация
· электричество
· вентиляция

Водоснабжение
Разводка горячего и холодного водоснабжения по мокрым точкам.

Отопление
Газовый двухконтурный котел
Теплые полы с коллекторной группой
Алюминиевые радиаторы отопления

Канализация
Cептик с переливом 9 м3.

Электричество
Разводка электричества.
Установка распределительной коробки.
Монтаж контура заземления.

Вентиляция
Установка выходов вытяжки на кровлю.
Разводка каналов по дому.
Установка приточных клапанов.

Остекление
Окна: пятикамерный профиль, двухкамерный энергоэффективный. Стеклопакет с отражающим покрытием с наружной отделкой. Москитные сетки в подарок.
Монтаж металлических отливов.

Входная дверь
Утепленная входная дверь с терморазрывом.

Электрика
Монтаж освещения и силовых кабелей с установкой подрозетников.
Установка розеток и выключателей.
Монтаж уличного освещения.

Отделка внутренних стен
Штукатурка по маякам.
Шпаклёвка под обои на 2 раза.

Отделка пола
Полусухая стяжка по маякам с утеплением экструдированным пенополистиролом (пол готов к укладке напольного покрытия).

Межкомнатные перегородки
Кирпичные перегородки.
Смотрите также