Строим в Барнауле
Рассчитать стоимость
Рассчитать стоимость
рассчитать стоимость
Строим в Барнауле
Рассчитать стоимость
рассчитать стоимость
Проекты
проекты
Дома в продаже
дома в продаже
рассрочка
О компании
о компании
Построенные дома
построенные дома
Комплектация дома
комплектация дома
проект от компании стройся
Отмостка вокруг дома и проект в подарок!
Характеристики
Этаж:
1
Площадь:
90 м²
Комнат:
3
Габариты:
12 400 мм х 12 840 мм
Стоимость дома под ключ:
Кухня-гостиная
3 спальни
терраса
Санузел
Получить смету
Получить смету
славный дом max
проект
Получите смету на строительство дома
6 525 158 ₽
проект славный дом max
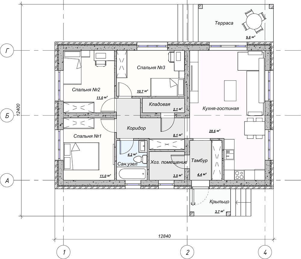
планировка
Проект можно легко изменить по вашему желанию
Просторная кухня-гостиная
3 спальни
Санузел
Кладовая
проект славный дом max
Комплектация дома
Фундамент
Фундамент подбирается после проведения геологии на земельном участке.
Монолитное перекрытие пола первого этажа 100мм.
Цоколь
Цоколь утепленный ЭППС 50 мм с облицовкой.
Стены
Газобетонные блоки Сибит 300 мм D500 / Сибит 400 мм D400.
Теплоизоляция стен: Минеральная плита 75-125 кг/м3 толщиной 50мм.
Армированный пояс.
Утепление экструдированным пенополистиролом 100 мм.
Отделка фасада: облицовочный белый кирпич или штукатурка (мокрый фасад).
Кровля
Металлочерепица толщиной 0,5 мм.
Деревянная стропильная система с контробрешеткой и подкровельной мембраной (ветро-гидро защитная диффузионная мембрана). Деревянное чердачное перекрытие.
Утепление эковатой 200 мм.
Отделка карнизов металлическими софитами.
Водосточная система.
Коммуникации
Полный комплекс работ по разводке и подключению инженерных коммуникаций:
· водоснабжение
· отопление
· канализация
· электричество
· вентиляция
Водоснабжение
Разводка горячего и холодного водоснабжения по мокрым точкам.
Отопление
Газовый двухконтурный котел
Теплые полы с коллекторной группой
Алюминиевые радиаторы отопления
Канализация
Cептик с переливом 9 м3.
Электричество
Разводка электричества.
Установка распределительной коробки.
Монтаж контура заземления.
Вентиляция
Установка выходов вытяжки на кровлю.
Разводка каналов по дому.
Установка приточных клапанов.
Остекление
Окна: пятикамерный профиль, двухкамерный энергоэффективный. Стеклопакет с отражающим покрытием с наружной отделкой. Москитные сетки в подарок.
Монтаж металлических отливов.
Входная дверь
Утепленная входная дверь с терморазрывом.
Электрика
Монтаж освещения и силовых кабелей с установкой подрозетников.
Установка розеток и выключателей.
Монтаж уличного освещения.
Отделка внутренних стен
Штукатурка по маякам.
Шпаклёвка под обои на 2 раза.
Отделка пола
Полусухая стяжка по маякам с утеплением экструдированным пенополистиролом (пол готов к укладке напольного покрытия).
Отмостка в подарок!
Отмостка бетонная, утепленная ЭППС 50мм.
Межкомнатные перегородки
Кирпичные перегородки.
Славный дом MAX – это современный одноэтажный дом. Он наполнен уютом, светом и теплом. Наши архитекторы продумали все до мелочей, чтобы ваша жизнь в этом доме была удобной, комфортной и светлой.

Славный дом MAX – это дом для тех, кто ценит уют, стиль, комфорт и заботится о своем бюджете.
о проекте
Славный дом MAX – это современный одноэтажный дом. Он наполнен уютом, светом и теплом. Наши архитекторы продумали все до мелочей, чтобы ваша жизнь в этом доме была удобной, комфортной и светлой.

Славный дом MAX – это дом для тех, кто ценит уют, стиль, комфорт и заботится о своем бюджете.
о проекте
Узнайте подробнее про Славный дом MAX
Оставьте заявку, и наш менеджер свяжется с вами.
Оставить заявку
компания стройся
вам может понравиться
Отмостка вокруг дома и проект в подарок!
Счастливый дом
88 м2
3
Кухня-гостиная с выходом на террасу, 2 спальни, гараж
5 373 000 ₽
смотреть
смотреть
Счастливый дом плюс
92 м2
4
Кухня-гостиная с выходом на террасу, 3 спальни, кладовая
6 725 890 ₽
смотреть
смотреть
Барнхаус Гармония
105 м2
3
Кухня-гостиная с выходом на террасу, 3 спальни, гардеробная
6 325 425 ₽
смотреть
смотреть
Милый дом
110 м2
4
Гостиная с выходом на террасу, 3 спальни, 2 санузла, гардеробная...
6 490 838 ₽
смотреть
смотреть
Успешный дом
111 м2
3
Кухня-гостиная, 3 спальни, гараж
7 322 769 ₽
смотреть
смотреть
Мы используем файлы cookie, чтобы сайт был удобным для вас. Продолжая оставаться на сайте, вы даете согласие на использование cookie.
Принять